+375 29 836 11 11 Пн-Пт c 8:00 до 17:00
Типовые проекты
Дом 132
Площадь 132,4 м²
Цена Уточняйте у менеджера
Характеристики
Общая площадь дома 132,4 м²
Этажность 2 этажа
Кухня-гостиная 31,3 м²
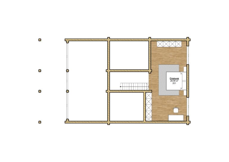
Спальня 8,4 м²
Спальня 9,0 м²
Спальня 9,8 м²
Спальня 28,5 м²
Сан. узел 2,6 м²
Душевая 4,0 м²
Мини-котельная 3,1 м²
Teppaca 22,1 м²
Холл 5,4 м² и 9,2 м²
Цена Уточняйте у менеджера(в BYN по Курсу НБРБ на день оплаты)
По вашим предпочтениям можно
внести изменения в типовой проект

Планировка

Дом со вторым светом и огромной спальней на втором этаже , с террасой прекрасно подойдет ,как для молодой семейной пары ,так и для многодетной семьи.
Стоимость за домокомплект от 36300 долларов
Стоимость за дом (теплый контур) от 71500 долларов

Дом в Фахверковом стиле -это особая эстетика . Данная технология позволяет дому дышать, а также сохранить все экологические свойства. Каркас дома собирается и стыкуется в плотные технологические отверстия. Данный проект имеет большой вылет крыши, под которым располагается уютная терраса ,что позволит провести ни один незабываемый вечер в кругу друзей и семьи наслаждаясь свежим воздухом и устроить барбекю или просто насладиться тишиной ,глядя на звезды .
Еще одним плюсом являются огромные витражные окна ,что дает возможность наслаждаться видами в любое время года.
Особенности
Вход в гостиную с террасы;
Просторная прихожая из который имеется выход в котельную;
Дом со вторым светом (на втором этаже расположена спальня);
Толщина стен от 120мм.
План 1-го этажа
План 2-го этажа

Получите подробную консультацию
по данному проекту

Свяжитесь с нами любым удобным способом
Телефон для связи
+375 29 836 11 11
Наш офис
25013, Брестский район, д. Збунин, Республика Беларусь
Режим работы
Пн-Пт c 8:00 до 17:00
или оставьте заявку на обратный звонок

    Нажимая кнопку “Перезвоните мне”, Вы соглашаетесь с Политикой конфиденциальности

    Что входит в базовую стоимость домокомплекта с тепловым контуром?

    Каждый дом комплектуется индивидуально,
    по согласованию с заказчиком следующими материалами:
    3D проект
    Архитектурное решение с 3D видами. План фундамента (по согласованию), размер кровли, сборочные чертежи всех элементов дома от нижнего бруса и до стропильной системы.
    Домокомплект
    Все стены (коробка) + стропильная система
    Дом может быть произведен в трех вариантах, в зависимости от выбранной толщены стен.
    Домокомплект
    Крепежная фурнитура
    Пропитка и покраска клееного бруса (TEKNOS,ZOBEL, Sirca , Tikkurila (пропитать дом необходимо сразу же после сборки). Это наше требование и рекомендация, так как при отсутствии защитного слоя (лака, грунтовки, масла), дерево может впитать влагу, потемнеть/почернеть - в таком случае производитель не несет гарантию за дом. Наша компания может оказать услугу по пропитке и покраске дома после согласования цвета с заказчиком.
    Домокомплект
    Входные двери и окна
    Окна деревянные (деревянные окна, двухкамерные стеклопакеты с европейской фурнитурой), деревянные двери с европейской фурнитурой и замками
    Домокомплект
    Кровельные материалы
    Фальцевая кровля, металлочерепица, гибкая кровля), утеплитель компании “Технониколь” либо аналоги
    Домокомплект

    Этапы постройки дома

    Оказываем помощь и поддержку для своих клиентов на этапе согласования проекта и при сдаче готового дома!
    1 – Геодезия участка
    2 – Геология участка
    3 – Архитектурный план дома
    4 – Сборка дома под ключ
    5 – Сборка дом
    Этап 1
    Геодезия участка

    Для подготовки к строительству необходимо начать с геодезии участка. Геодезия необходима  для правильной посадки дома на участке по отношению к вашему забору и проезжей части, т. к. имеются определенные нормы, установленные законодательством. Также при данной процедуре вы можете получить оценку расположения дома к сторонам света. Это очень важный момент, который не стоит игнорировать перед началом проектных и  строительных работ. Во-первых при неправильном расположении  фундамента — стройку могут запретить государственные органы и придется все начинать сначала. Во-вторых, наверняка у Вас есть предпочтение и пожелание, как солнце должно освещать ваши комнаты, какая сторона дома должна быть прохладнее, а где всегда должно быть тепло и уютно. В данном случае этап геодезии нельзя исключать.

    Этап 2
    Геология участка

    Геология участка. Данная процедура необходима для выбора правильного типа фундамента под планируемый дом. При наличии плана фундамента заказчик может  залить фундамент своими силами либо поручить этот шаг  нашей компании,

    Этап 3
    Архитектурный план дома

    Мы предлагаем на Ваш выбор два варианта сотрудничества:

    • при выборе типового проекта, мы сразу предоставим архитектурный проект, по которому можно строить дом. Экономия времени и денег — самый быстрый способ
    • корректировка типового проекта, либо индивидуальное проектирование. Данный вариант самый распространенный, так как заказчик ищет дом исключительно под свои предпочтения и имеет свое представление, как должен выглядеть дом его мечты.  Как правило данный этап может занимать от 1 месяца и более
    Этап 4
    Сборка дома под ключ

    В зависимости от сложности утвержденного архитектурного проекта, производство и комплектация дома займет от двух  до четырех месяцев. 

     

    Этап 5
    Сборка дом

    Сборка дома по тепловому контуру включает в себя монтаж стен, стропильной системы, кровли, окон и дверей, на этот этап отводится  от двух недель до одного месяца. По завершению данных работ (сборки) —  Ваш дом готов к внутренней работе.

    Похожие проекты